Cadoneghe appartamento ultimo piano con tre camere e due bagni.Possibilità di arredo
Rif.Adr198 | 112 mq | camere: 3 | bagni: 2 | € 198.000
Descrizione
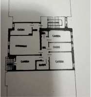
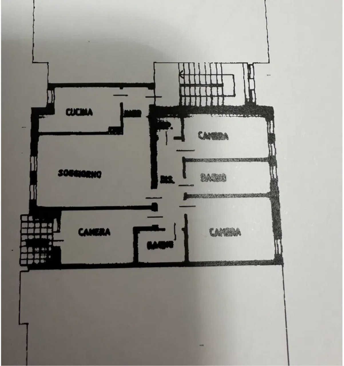
Luminoso appartamento quadrilocale di 111 m², situato al secondo piano di una tranquilla palazzina residenziale nella zona Meianiga di Cadoneghe. L'immobile è composto da un ampio soggiorno separato, una cucina abitabile anch'essa separata, tre spaziose camere da letto e due bagni (uno finestrato e uno cieco), oltre a un disimpegno che collega gli ambienti.
Completano la proprietà un garage privato al piano terra di 15 m², incluso. Le spese condominiali sono contenute: solo 58 euro mensili.
L'appartamento si trova in una posizione centrale e strategica; il Comune, le scuole e i negozi sono facilmente raggiungibili a piedi. Inoltre, l’area offre ottimi collegamenti con Padova rendendola ideale sia per famiglie che professionisti.
La proprietà gode di un'esposizione est-sud che garantisce luce naturale durante tutto il giorno ed è classificata in classe energetica E. È possibile valutare anche la vendita parzialmente o totalmente arredata tramite trattativa privata.
Non perdere questa occasione! Contattaci per ulteriori informazioni o per prenotare una visita all’immobile.
Dettagli
| Anno di costruzione: | 1996 |
| Prezzo: | € 198.000 |
| Spese condominiali: | € 58 |
| Esposizione: | ovest, est |
| Metri quadri: | 112 mq |
| bagni: | 2 |
| camere: | 3 |
| Classe energetica: |
I.P.E. 145,00 kWh/m2 anno |
| garage: | 1 |
| numero accessi carrai: | 1 |
| numero portoni: | 1 |
| piano numero: | 2 |
| ripostigli: | 1 |
| terrazzi: | 1 |
| totale piani: | 2 |
Ambienti: | |
Comfort: | |
Livelli: | |
| Comune: | Cadoneghe |
| Indirizzo: | Cadoneghe Via conche 19 |
| Data inserimento: | |
| Data ultima modifica: | |



























